Let's Take A Look
Schedule a showing now!
Austin, TX 78703
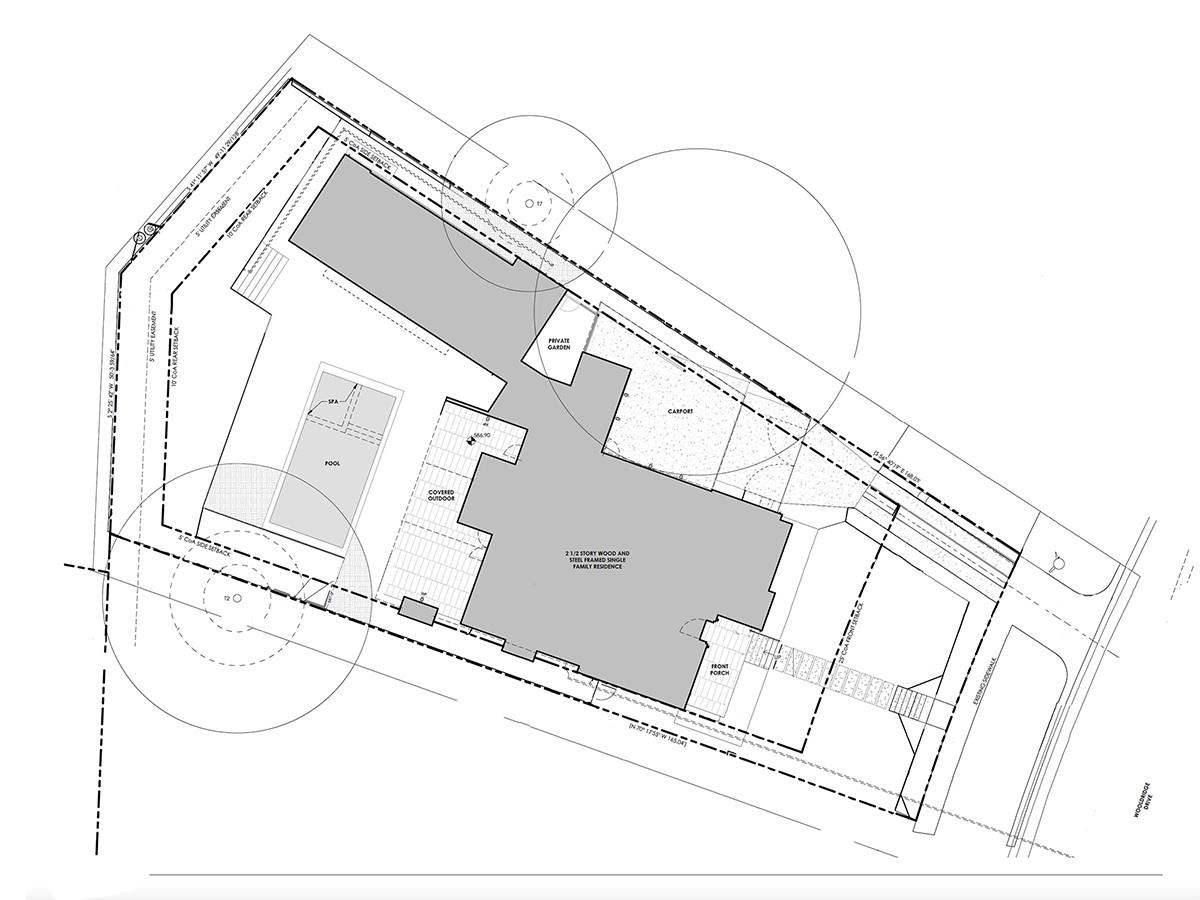
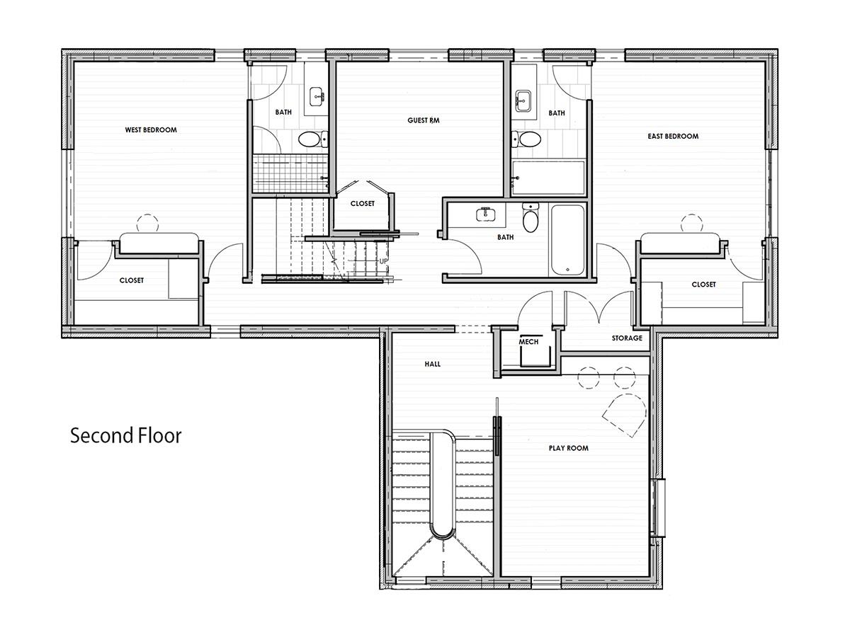
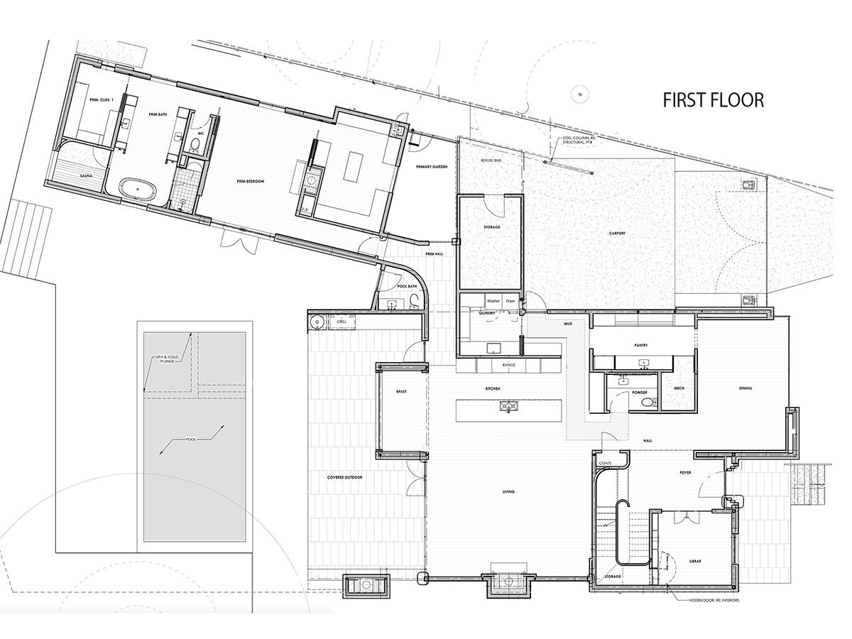
This 0.3 acre property is located on desirable Wooldridge Drive and its level topography allows abundant options for creating your dream home. Unattached to a builder, with an approved demo permit, the property comes with fully permitted plans by Outward Architecture for a 5,887 square foot home with pool. The current property is a 4,205 sqft two-story home with 4 bedrooms and 4 bathrooms. Opportunities for a remodel, build with the fully designed/permitted plans or create something entirely new abound. A truly amazing opportunity in Pemberton Heights!
Listed by Gottesman Residential R.E.
| MLS ID | ACT9817854 | |
| Status | Active | |
| Days Active | 741 | |
| Est. Tax | N/A | |
| Lot Size | 0.3 | |
| Year Built | ||
| Total Bedrooms | 0 | |
| 1st Floor Bedrooms | ||
| Full Baths | ||
| Half Baths | ||
| Square Feet | 0 | |
| Price Per SqFt | N/A | |
| Garage Spaces | ||
| Fireplace(s) | ||
| Fireplace Info | ||
| Flooring | ||
| Stories | ||
| Pool | No | |
| Courtesy of | Gottesman Residential R.E. (512) 451-2422 | |
| Subdivision | Pemberton Heights Sec 01 | |
| City | Austin | |
| County | Travis | |
| HOA | ||
| HOA Fee | $ / | |
| Water Front | No | |
| Roof | ||
| Construction | ||
| Foundation | ||
| Fencing | ||
| Elementary School | Casis |
| Middle School | O Henry |
| High School | Austin |
| Appliances | ||
| Heating | ||
| Cooling | ||
| Exterior Features | Balcony, Private Yard | |
| Lot Features | City Lot, Front Yard, Interior Lot, Trees-Medium (20 Ft - 40 Ft) | |
| Community Features | None | |
| Patio Features | ||
| Structures | Garage(s) | |
| Interior Features | ||
| Courtesy of | Gottesman Residential R.E.(512) 451-2422 | |
| Fencing Features | ||
| Parking Features | ||