Let's Take A Look
Schedule a showing now!
Austin, TX 78731
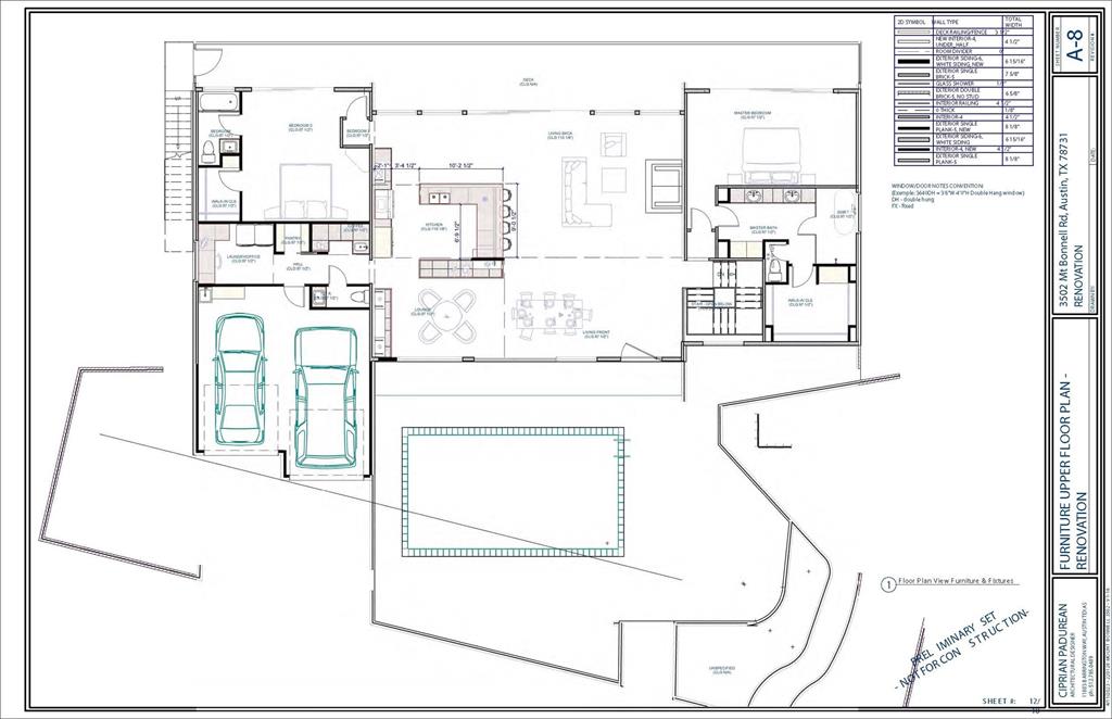
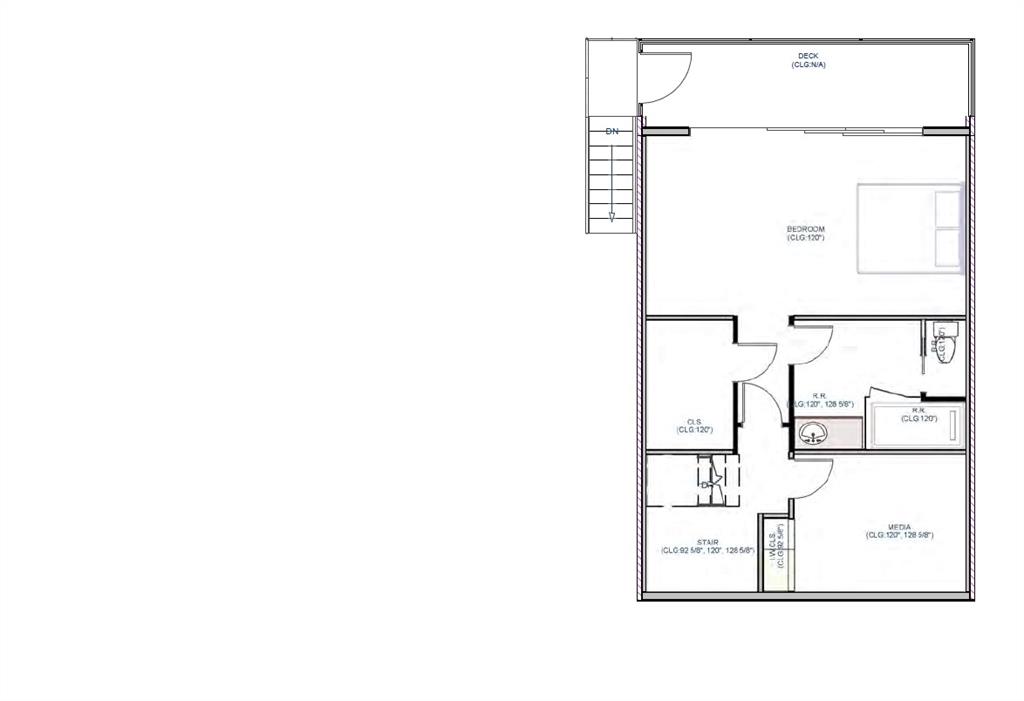
MILLION DOLLAR PRICE REDUCTION! CURRENTLY DOWN TO STUDS. ARCHITECTURAL DRAWINGS AVAILABLE FOR REMODEL. This iconic Austin property is hitting the market for the first time in 26 years! A mid-century masterpiece perched on the edge of Mount Bonnell featuring some of Austin’s most sought after views. The home was designed by renowned architect Emily Little and was built of Old Texas Brick in Chicago Buff Gold tones. The front courtyard lies on the street side of the home and boasts an oversized pool. The front of the home consists almost completely of sliding glass doors that allow you to view the living areas and out over Lake Austin on the backside of the home. Oversized covered patios on both floors provide multiple outdoor living spaces and every room from the home enjoys sweeping views of Lake Austin and Westlake Hills. Live on one of Austin’s most prestigious streets, Mount Bonnell Road. Buyers who are interested in new construction or remodeling the current home should note that the front left corner of the home (location of current garage) has beautiful views of downtown Austin and a rooftop terrace would give you close to 360 degree views of Austin.
Listed by Compass RE Texas, LLC
| MLS ID | ACT9681375 | |
| Status | Pending | |
| Days Active | 1361 | |
| Est. Tax | N/A | |
| Lot Size | 0.295 | |
| Year Built | 1970 | |
| Total Bedrooms | 3 | |
| 1st Floor Bedrooms | 2 | |
| Full Baths | 3 | |
| Half Baths | 1 | |
| Square Feet | 2,948 | |
| Price Per SqFt | $1,355.16 | |
| Garage Spaces | 2 | |
| Fireplace(s) | 1 | |
| Fireplace Info | Living Room | |
| Flooring | See Remarks | |
| Stories | Two | |
| Pool | Yes | |
| Courtesy of | Compass RE Texas, LLC (512) 575-3644 | |
| Subdivision | Mount Bonnell Terrace Sec 01 | |
| City | Austin | |
| County | Travis | |
| HOA | ||
| HOA Fee | $ / | |
| Water Front | No | |
| Roof | Composition, Tar/Gravel | |
| Construction | N/A | |
| Foundation | Pillar/Post/Pier, Slab | |
| Fencing | Fenced, Masonry, See Remarks | |
| Elementary School | Casis |
| Middle School | O Henry |
| High School | Austin |
| Appliances | Water Heater | |
| Heating | Central, Fireplace(s), Natural Gas | |
| Cooling | Central Air | |
| Exterior Features | Balcony, Uncovered Courtyard, Private Entrance | |
| Lot Features | Back to Park/Greenbelt, Landscaped, Native Plants, Private, Sprinkler - Automatic, Steep Slope, Many Trees, Xeriscape | |
| Community Features | None | |
| Patio Features | Awning(s), Covered, Patio | |
| Structures | None | |
| Interior Features | Beamed Ceilings, Vaulted Ceiling(s), Multiple Dining Areas, Primary Bedroom on Main | |
| Courtesy of | Compass RE Texas, LLC(512) 575-3644 | |
| Fencing Features | Fenced, Masonry, See Remarks | |
| Parking Features | Attached, Door-Multi, Driveway, Garage Door Opener | |