Let's Take A Look
Schedule a showing now!
Austin, TX 78703
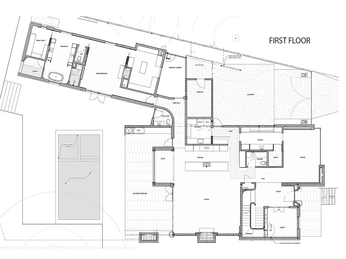
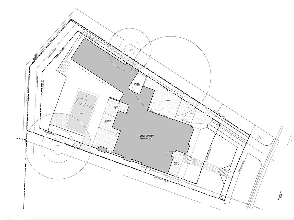
This 0.3 acre property is located on desirable Wooldridge Drive and its level topography allows abundant options for creating your dream home. Unattached to a builder, with an approved demo permit, the property comes with fully permitted plans by Outward Architecture for a 5,887 square foot home with pool. The current property is a 4,205 sqft two-story home with 4 bedrooms and 4 bathrooms. Opportunities for a remodel, build with the fully designed/permitted plans or create something entirely new abound. A truly amazing opportunity in Pemberton Heights!
Listed by Gottesman Residential R.E.
| MLS ID | ACT3629635 | |
| Status | Active | |
| Days Active | 740 | |
| Est. Tax | N/A | |
| Lot Size | 0.3 | |
| Year Built | 1939 | |
| Total Bedrooms | 4 | |
| 1st Floor Bedrooms | 1 | |
| Full Baths | 4 | |
| Half Baths | 0 | |
| Square Feet | 4,140 | |
| Price Per SqFt | $771.74 | |
| Garage Spaces | 2 | |
| Fireplace(s) | 3 | |
| Fireplace Info | Family Room, Living Room, Primary Bedroom | |
| Flooring | Carpet, Tile, Wood | |
| Stories | Two | |
| Pool | No | |
| Courtesy of | Gottesman Residential R.E. (512) 451-2422 | |
| Subdivision | Pemberton Heights Sec 01 | |
| City | Austin | |
| County | Travis | |
| HOA | ||
| HOA Fee | $ / | |
| Water Front | No | |
| Roof | Composition | |
| Construction | Stucco | |
| Foundation | Pillar/Post/Pier | |
| Fencing | Back Yard, Gate | |
| Elementary School | Casis |
| Middle School | O Henry |
| High School | Austin |
| Appliances | Built-In Electric Oven, Cooktop, Dishwasher, Disposal | |
| Heating | Central | |
| Cooling | Central Air | |
| Exterior Features | Balcony, Private Yard | |
| Lot Features | City Lot, Front Yard, Interior Lot, Trees-Medium (20 Ft - 40 Ft) | |
| Community Features | Curbs, Street Lights | |
| Patio Features | Patio | |
| Structures | None | |
| Interior Features | Beamed Ceilings, Multiple Living Areas, Recessed Lighting, Soaking Tub, Walk-In Closet(s) | |
| Courtesy of | Gottesman Residential R.E.(512) 451-2422 | |
| Fencing Features | Back Yard, Gate | |
| Parking Features | Detached, Door-Single, Electric Gate, Garage, Garage Door Opener | |