Let's Take A Look
Schedule a showing now!
Austin, TX 78732
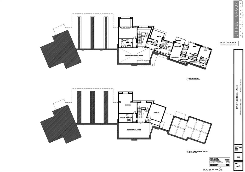
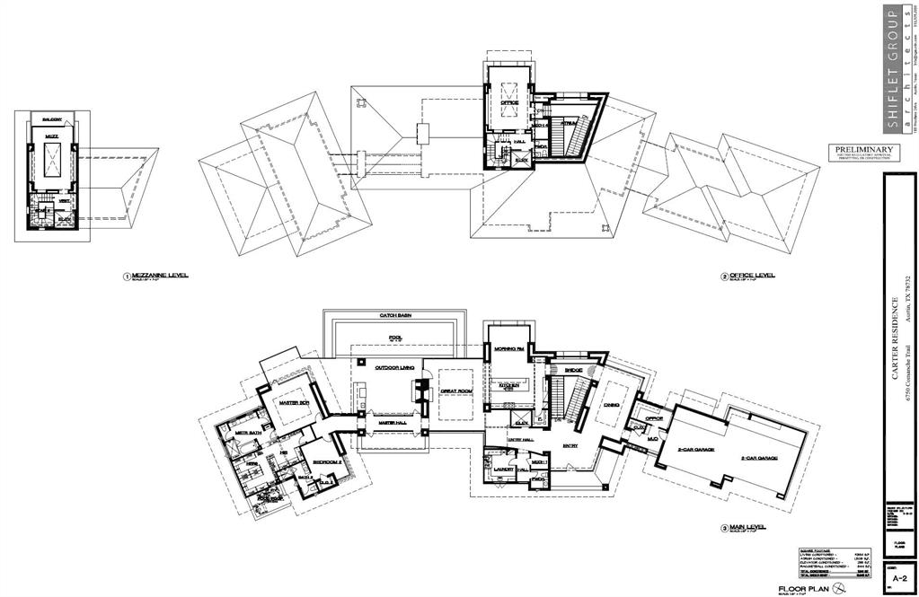
The Crown Jewel of Lake Travis, Austin, TX A once in a lifetime opportunity to own 5.57 acres of Lake Travis Waterfront on the main basin with unobstructed, panoramic lake and hill country views. Build your dream estate along the gold coast of Lake Travis on this terraced acreage with a protected cove for your boathouse. Approximately 355' of main basin frontage and a nationally recognized location near the iconic Oasis Restaurant -- The Sunset Capital of Texas. Lake Travis is a clear, freshwater, over 170’ deep lake that’s only 16 miles to downtown Austin. It’s known for great boating, water sports, scuba diving, and fishing. www.6750Comanche.com To give you an idea of this location’s potential, renowned Austin architect David Shiflet’s house plans for a 14,341 square foot custom home are available. The home can be designed to your specifications. OR Bring your own builder/architect and design your dream home. The floorplan features six bedrooms, six full bathrooms, and one-half bathroom. Every room, including the bathrooms and the laundry room, has a window with a view. Other notable interior features include a regulation indoor racquetball court with an automated pop-out basketball hoop. There’s a two-story office/library with clerestory windows, a four-story floating staircase with a glass-walled atrium, and a five-story commercial elevator. When you’re ready to relax outdoors, you’ll have an exterior that features multiple balconies (as much as 64' above the ground below) and a 46' swimming pool with infinity edges on three sides. A tram located on the lowest floor will take you down to the boathouse. A separate self-contained living section with a separate entrance can be locked off for guests or a mother-in-law suite. There is plenty of parking with a four-car enclosed garage and outdoor parking spaces for seven cars (not counting the driveway). And you’ll have the option to finish out storage space to increase your living area.
Listed by Coldwell Banker Realty
| MLS ID | ACT1495559 | |
| Status | Active | |
| Days Active | 1125 | |
| Est. Tax | $7,415 | |
| Lot Size | 5.57 | |
| Year Built | ||
| Total Bedrooms | 0 | |
| 1st Floor Bedrooms | ||
| Full Baths | ||
| Half Baths | ||
| Square Feet | 0 | |
| Price Per SqFt | N/A | |
| Garage Spaces | ||
| Fireplace(s) | ||
| Fireplace Info | ||
| Flooring | ||
| Stories | ||
| Pool | No | |
| Courtesy of | Coldwell Banker Realty (512) 263-5655 | |
| Subdivision | Oasis Bluff | |
| City | Austin | |
| County | Travis | |
| HOA | Comanche Trail Community Association | |
| HOA Fee | $25 / Annually | |
| Water Front | Yes | |
| Roof | ||
| Construction | ||
| Foundation | ||
| Fencing | None | |
| Elementary School | Grandview Hills |
| Middle School | Canyon Ridge |
| High School | Vandegrift |
| Appliances | ||
| Heating | ||
| Cooling | ||
| Exterior Features | None | |
| Lot Features | Bluff, Public Maintained Road, Sloped Down, Steep Slope, Many Trees, Views | |
| Community Features | Lake, Park, Restaurant, Rooftop Lounge | |
| Patio Features | ||
| Structures | None | |
| Interior Features | ||
| Courtesy of | Coldwell Banker Realty(512) 263-5655 | |
| Fencing Features | None | |
| Parking Features | ||