Let's Take A Look
Schedule a showing now!
Jarrell, TX 76537
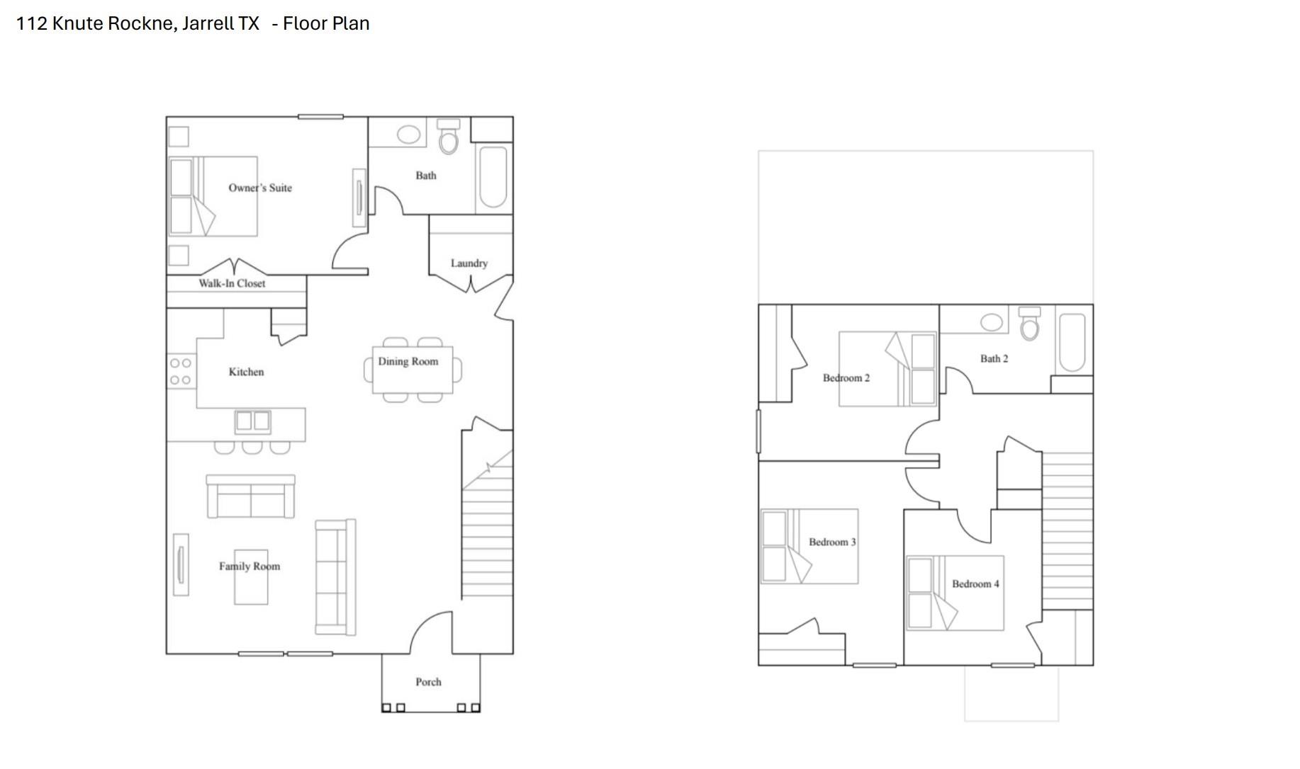
This inviting 2 story home is available immediately. Built in 2023, this home is just under 1 year old, you'll love this spacious and open living, kitchen and dining. Quality amenities throughout include extensive cabinetry, counter space. Stainless appliances include the large refrigerator. There is 1 main floor bedroom and full bath. 3 large bedrooms and full bath up. Spacious back yard. There is only 1/2 half block to Park, playground & sport fields. Community pool is under construction. Growing community has convenient access to IH 35 and Ronald Reagan Blvd. The monthly rent already includes high speed internet. 2 Pets allowed, cats/dogs, $400/pet refundable deposit and 25/pet/mo rent. Owner to approve each. Online application, fee paid online.
Listed by eXp Realty, LLC
| MLS ID | ACT1067484 | |
| Status | Pending | |
| Days Active | 753 | |
| Est. Tax | N/A | |
| Lot Size | 0.113 | |
| Year Built | 2023 | |
| Total Bedrooms | 4 | |
| 1st Floor Bedrooms | 1 | |
| Full Baths | 2 | |
| Half Baths | 0 | |
| Square Feet | 1,602 | |
| Price Per SqFt | $1.06 | |
| Garage Spaces | 0 | |
| Fireplace(s) | 0 | |
| Fireplace Info | None | |
| Flooring | Carpet, Laminate, Vinyl | |
| Stories | Two | |
| Pool | No | |
| Courtesy of | eXp Realty, LLC (888) 519-7431 | |
| Subdivision | Rancho Del Cielo | |
| City | Jarrell | |
| County | Williamson | |
| HOA | ||
| HOA Fee | $ / | |
| Water Front | No | |
| Roof | Composition | |
| Construction | HardiPlank Type, Masonry – All Sides | |
| Foundation | Slab | |
| Fencing | Back Yard, Privacy, Wood | |
| Elementary School | Jarrell |
| Middle School | Jarrell |
| High School | Jarrell |
| Appliances | Dishwasher, Disposal, Microwave, Oven, Free-Standing Range, Electric Water Heater | |
| Heating | Central | |
| Cooling | Central Air, Electric | |
| Exterior Features | Private Yard | |
| Lot Features | Back Yard, Curbs, Interior Lot, Sprinkler - Automatic | |
| Community Features | Cluster Mailbox, Dog Park, Park, Picnic Area, Playground, Pool, Walk/Bike/Hike/Jog Trail(s | |
| Patio Features | Covered, Front Porch | |
| Structures | None | |
| Interior Features | Breakfast Bar, Entrance Foyer, High Speed Internet, Interior Steps, Open Floorplan, Primary Bedroom on Main, Walk-In Closet(s) | |
| Courtesy of | eXp Realty, LLC(888) 519-7431 | |
| Fencing Features | Back Yard, Privacy, Wood | |
| Parking Features | Driveway | |